光成端箱(光成端架)(屋内自立・高密度実装型) CTF****
CTF200、CTF300、CTF400、CTF500、CTF600、CTF800、CTF1000、CTF1200
電線事業部
用途
屋内自立
特長
- 高密度実装方式を採用し、大容量にも関わらず小型化を実現しました。
- ケーブル導入方向変更も対応可能ですのでお問い合わせください。
- 光アダプタはSC形が標準です。他のタイプについてはお問い合わせください。
- 成端箱内部にあらかじめ光コードを配線(プレ配線)することも可能です。
CTF200

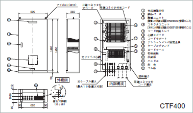
CTF400

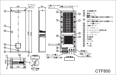
CTF800

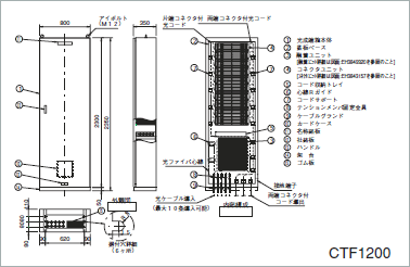
CTF1200

仕様
| 型 式 | ケーブル導入条数 | 光アダプタ実装数 | 融着ユニット数 | コネクタユニット数 | 寸法W×H×D(mm) |
|---|---|---|---|---|---|
| CTF200 | 最大10条 | 最大200心 | 1(60接続/ユニット) | 2(100心/ユニット) | 800×1050×350 |
| CTF300 | 最大10条 | 最大300心 | 1(90接続/ユニット) | 3(100心/ユニット) | 800×1250×350 |
| CTF400 | 最大10条 | 最大400心 | 1(120接続/ユニット) | 4(100心/ユニット) | 800×1450×350 |
| CTF500 | 最大10条 | 最大500心 | 1(150接続/ユニット) | 5(100心/ユニット) | 800×1600×350 |
| CTF600 | 最大10条 | 最大600心 | 2(90接続/ユニット) | 6(100心/ユニット) | 800×1950×350 |
| CTF800 | 最大10条 | 最大800心 | 2(120接続/ユニット) | 8(100心/ユニット) | 800×2150×350 |
| CTF1000 | 最大10条 | 最大1000心 | 2(150接続/ユニット) | 10(100心/ユニット) | 800×2350×350 |
| CTF1200 | 最大10条 | 最大1200心 | 2(150接続/ユニット) | 10(120心/ユニット) | 800×2350×350 |

品名略号

電線事業部
関連製品一覧
その他の製品・ソリューションを探す
ABOUT US
持続可能な社会を支える高機能材料会社
売上収益
7,686億円
全従業員数
18,877人







